Sold

LARGE FAMILY HOME WITH DOWNSTAIRS BEDROOM

SERIOUS VENDORS HAVE REDUCED THE PRICE BY $20,500

Positioned in one of Brisbane’s most desirable suburbs, this exceptional and substantial residence offers generous and spacious living areas.

Stylish and modern, upstairs accommodates 4 large bedrooms, the master bedroom with walk in robe and ensuite, main bathroom and a large tv room overlooking the surrounding suburbs.

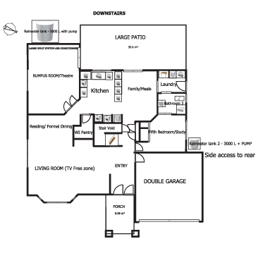
Downstairs provides separation for the growing family including, formal lounge/dining, meals area, separate rumpus room and large bedroom with built in wardrobe and adjoining bathroom.

The spectacular kitchen includes dishwasher and walk in pantry which overlooks the leafy tropical garden and outdoor entertainment area.

Car accomodation for up to 5 cars including room for a boat/ caravan down the side, large shed, water tanks, solar electricity, air conditioning and much more.

Close to Mt Ommaney Shopping Centre, local cafes and eateries, bus, primary and secondary schools, gold course and parks.

Call Jan or Alan now for your private viewing.

Features

Terrace/Paved Low maintenance Undercover outdoor area Smoke Alarms Safety Switch
5 3 5 665 m2
Address 15 Correa Close, Westlake
Price SOLD
Property Type Residential
Property ID 855
Category House
Land Area 665 m2

Agent Details

Jan Laing & Alan Peters photo

Jan Laing & Alan Peters

0411 427 452
View Profile