Sold

Sold By Lisa Terare & Team

This rendered highset home is a stylish mix of space, casual relaxed living and superb location - a great opportunity to secure low maintenance lifestyle that many will envy.

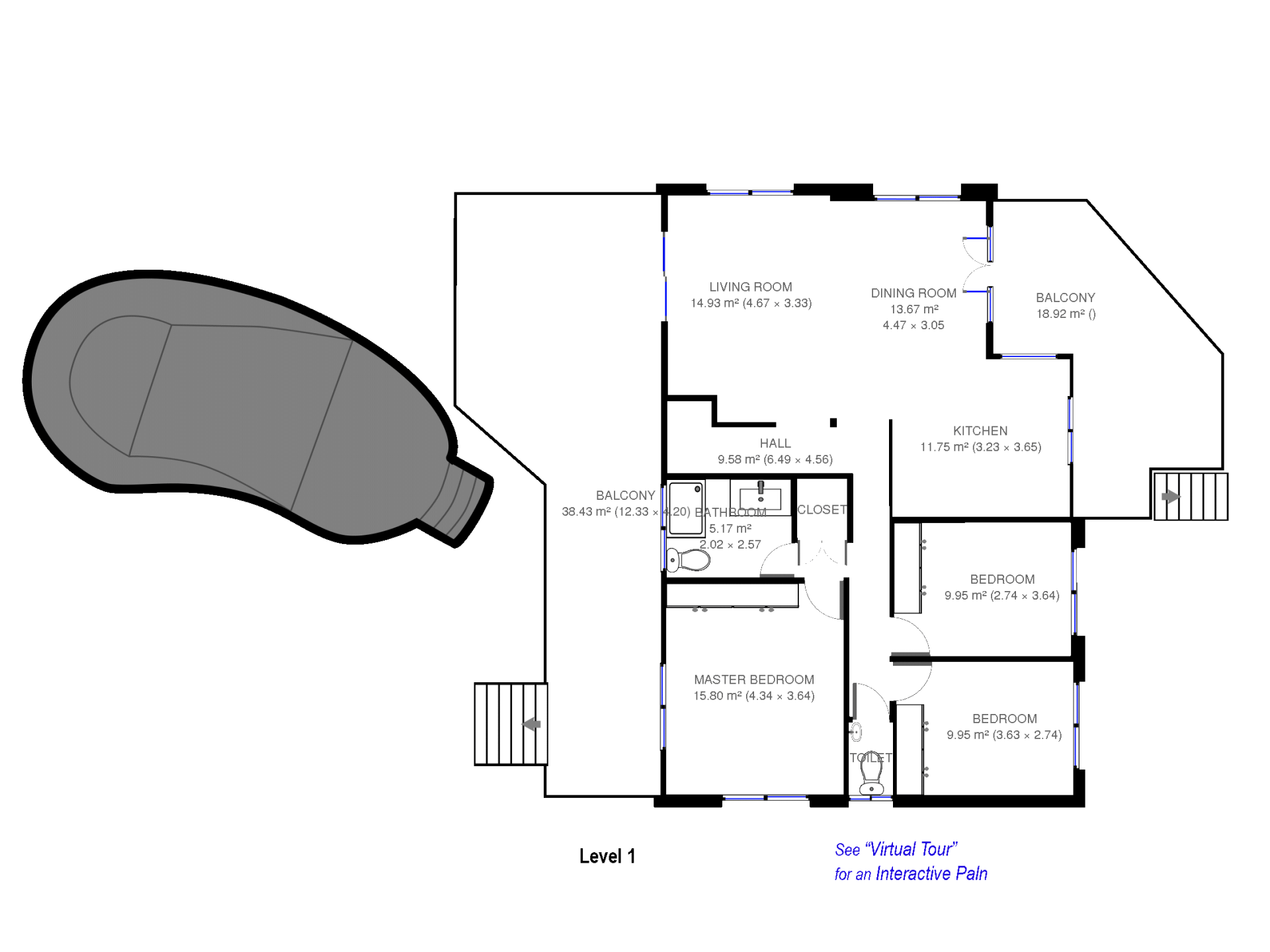
An open floor plan creates a living space that merges with a large deck front and back, to encourage a seamless flow between indoors and out and overlooks the sparkling pool and surrounding deck areas and grassy back yard.

OTHER FEATURES:
- 3 bedrooms upstairs with built-in robes
- Master with air-conditioning and access to back deck
- Central kitchen with timber cabinetry, plenty of storage and gas cooking
- Timber floorboards throughout
- Large front covered deck
- Sparkling in-ground pool
- Elevated position ensures cool afternoon breezes
- Solar panels
- Beautifully landscaped 574m2 landscaped block
- Internal access to single lockup garage

Enjoy the convenience of being a stone’s throw from Private and Public Schools, public transport, several major shopping centres, golf courses and the added proximity to a major highway without the noise!

Contact marketing agent Lisa Terare for an inspection.
3 2 1
Address 26 Sabot Street, Jamboree Heights
Price SOLD for $576,500
Property Type Residential
Property ID 2041
Category House

Agent Details

Jan Laing & Alan Peters photo

Jan Laing & Alan Peters

0411 427 452
View Profile