Sold

SOLD BY LISA TERARE & TEAM

Situated on an elevated 713m2 block this commanding double storey home is on offer for the first time. Custom built to the slope of the land to allow for single level living in a double storey design. Elevated and flood free and in the most convenient of locations you will have to act quickly to secure this one. This property will appeal to everyone looking for a big home in the heart of Jindalee and has all you need to move right in but still with an abundance of potential to make further improvements into the future.

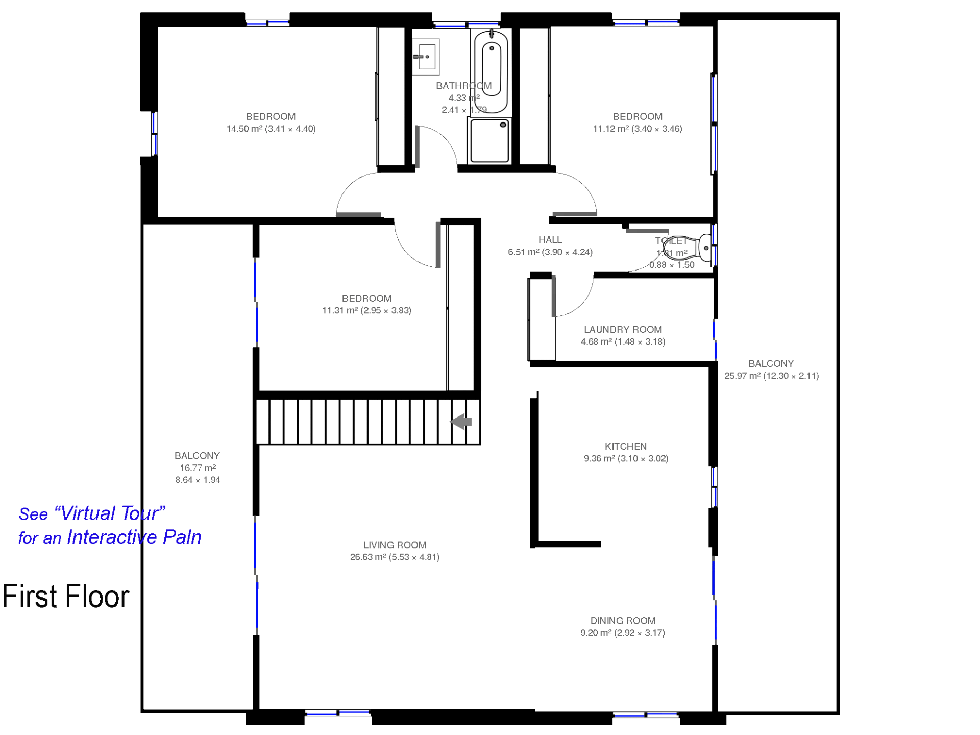
The home's lower level is just shy of legal height while still giving the opportunity to live comfortably over two levels. This area encompasses a huge, light filled rumpus room plus an extra room which could be used as an office or store room plus bathroom – perfect for teenagers retreat.

As you make your way upstairs through the internal staircase, the open and airy living and dining rooms give a true feeling of space with direct access to the front balcony providing lovely views and afternoon breezes. The kitchen is centrally located and enjoys an abundance of cupboard and counter top space, breakfast bar and updated appliances. Make your way outside to the spacious covered outdoor entertaining area that overlooks a flat useable grassy back lawn, a fantastic location to sit and unwind or entertain family and friends all year round.

Completing upstairs are three well appointed bedrooms with built-in robes and ceiling fans which are serviced by the main bathroom including separate shower and bath. The Master bedroom has ceiling fan, air conditioner and outdoor roller blinds for comfort in Summer.

This property is a rare find and represents an opportunity to invest in your family's future.
- 3 large bedrooms with build-ins
- 2 bathrooms
- Ceiling fans
- Air conditioning
- Master with built-in robes
- Open plan living/dining
- Separate rumpus room downstairs
- Double lock up garage
- Flood free
- Council rates approx $177.60/quarter
- Concrete driveway with access to the rear of the property
- Large internal workshop and storage shed
- Flat usable grassy back lawn
- Generous well maintained 713m2 block

Located within walking distance to all amenities including, Bus stop, IGA, Centenary High School, Jindalee Homemaker Centre, DFO, The Nook Restaurant and conveniently close to, Jindalee Primary School and Jindalee boat ramp.
3 2 2 713 m2
Address 53 Yallambee Road, Jindalee
Price SOLD for $555,000
Property Type Residential
Property ID 1929
Category House
Land Area 713 m2

Agent Details

Jan Laing & Alan Peters photo

Jan Laing & Alan Peters

0411 427 452
View Profile