Sold

SOLD BY LISA TERARE AND TEAM!

On offer is 909m2 of prime land, eminently suitable for the Queensland lifestyle, overlooking beautifully maintained natural parkland, an abundance of wildlife all around.
The superb modern home meets all your needs, the great family friendly design allows privacy to both the parents and children, giving great separation for everyone.
The floor plan is well laid out brings the outside in and allowing for great views and breezes This truly immaculate home is meticulously presented inside and out, and offers a spacious and practical floor-plan coupled with a prestigious location..
The main living areas flow comfortably to extra spacious and private outdoor living and entertaining areas, so whether indoors or out, if your family is into entertaining then this is the home for you.

Features include:

- Super modern kitchen, the chef will appreciate the array of European appliances and stone benches flowing to meals and entertainment areas.
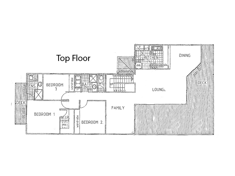
- 4 living areas
- Modern architectural design
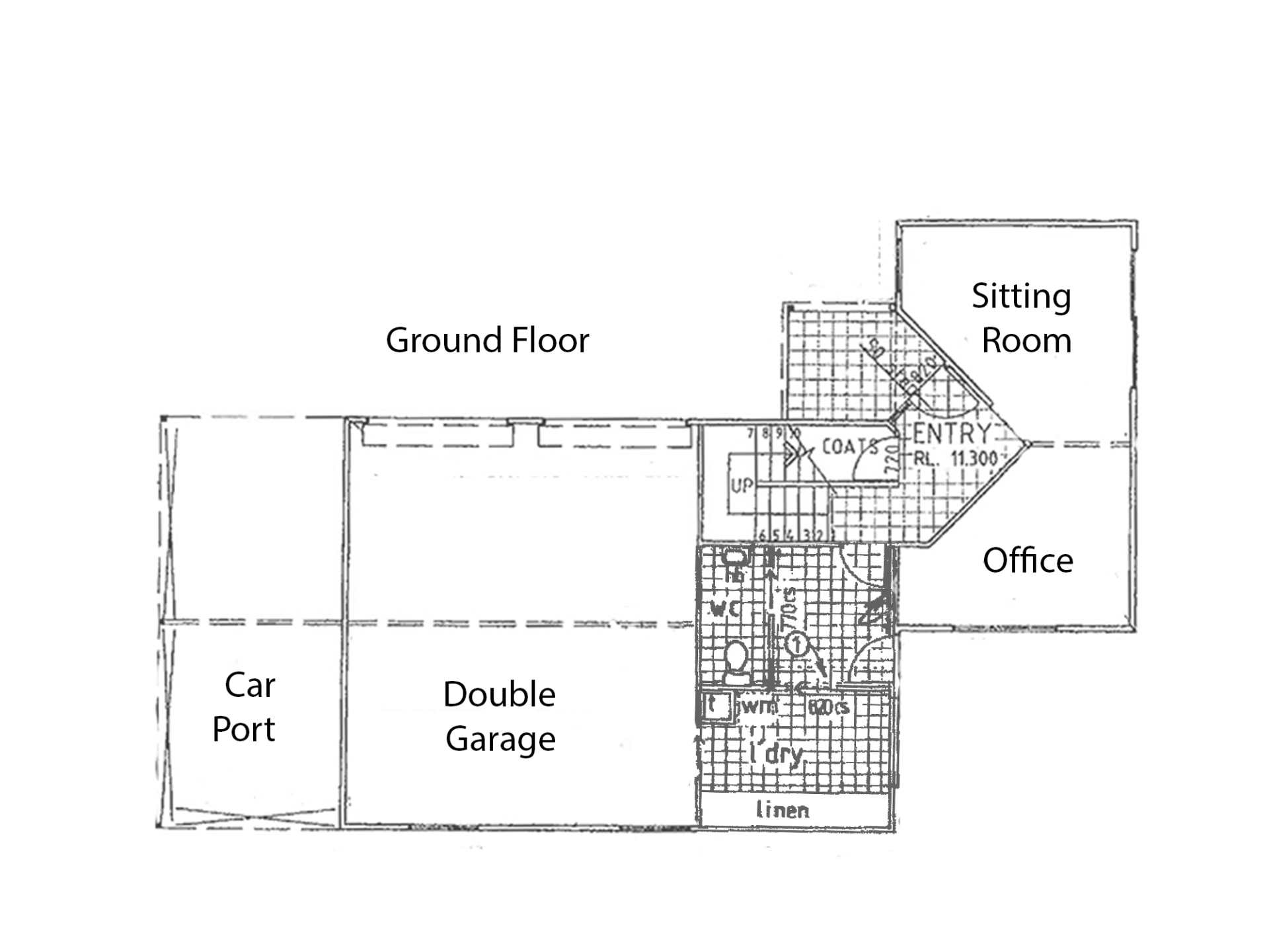
- Three bedrooms + Study & Studio
- Master with en-suite, walk-in robe & private balcony
- Security system
- CRIMSAFE security screens
- Ducted air-conditioning
- Solar power
- Garden shed
- Separate toilet/powder room
- Entertainment style wrap around veranda’s
- Views over natural parkland
- Low maintenance landscaped gardens in front and back of property
- Huge Double lock up garage
- Third covered parking bay
....Lots of extra's, come see for yourself

When a spacious and attractive home in a quality position is important, you will be impressed! This home sits with an abundance of wildlife all around. Young families will adore the proximity to local schools; mature buyers will simply enjoy the serenity
You need to see it to appreciate it, a viewing is a must!
4 2 3
Address 473 Westlake Drive, Riverhills
Price SOLD for $613,800
Property Type Residential
Property ID 1845
Category House

Agent Details

Jan Laing & Alan Peters photo

Jan Laing & Alan Peters

0411 427 452
View Profile